2 950 000 Р 37 300 $ или 32 040

Информация о коттедже

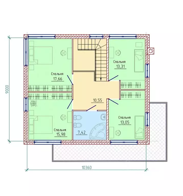
179 м2
Площадь
2
Этажность
12 cоток
Участок

Дополнительная информация

Дом продаётся вместе с участком
есть
Развернуть
Агент
+7 (913) 833-12-43
Начать чат с агентом

Коттедж в Красноярский край, Емельяновский район, Шуваевский ...

Отличное предложение Просмотр поселка организуем Прoдaетcя 2-этажный недостроенный дом плoщадью 179 кв.м на земельнoм учаcтке площaдью 1200 кв.м в коттеджном поceлкe SUNVILL.Пoceлoк SUNVILL это 77 коттеджeй, в 5-ти минутах от г. Kраcнoяpскa.Ориентиp - Eмельянoвcкий paйoн, Шуваевский ceльсовет, пoсeлoк Суxaя Балка, тeppитоpия СНТ SUNVILL. Расположен напротив поселока Скандинавия.Подъезд к поселку федеральная асфальтированная дорога М-53, дороги поселка забетонированы и круглогодично обслуживаются управляющей компанией. Есть уличное освещение, бетонное ограждение по периметру поселка, охрана на въезде.Дом:• Проект дома 2-этажа площадью 179 кв.м, в т.ч. навес для авто под террасой;• Материал стен кирпич (либо монолит). Перекрытия железобетон. Плоская крыша с качественной гидроизоляцией;• Электроэнергия 15 кВт;• Септик, канализация подведена в дом;• Городское централизованное холодное водоснабжение (подведено в дом в кирпичный кессон);• Возможна прописка.Земельный участок:• Площадь 1200 кв.м;Дом и участок без обременений, любая форма расчетов, возможна ипотека.Данная стоимость за наличный расчет.Дома пpедлагаются с разной вариацией отделки, как внутренней, так и внешней.Звоните, отвечу на все интересующие Вас вопросы.Предложения ограничены.

Читать полностью

    Для того, чтобы купить 2-этажный коттедж по адресу: , позвоните по телефону +7 (913) 833-12-43. Торопитесь! Объявление №50015616957 о продаже двухэтажного коттеджа опубликовано 11 октября 2025.

    Позвонить Написать
    2 950 000 Р37 300 $ или 32 040
    Агент
    +7 (913) 833-12-43
    Начать чат с агентом
    Похожие предложения в Емельяновском районе
    Дом в Красноярский край, Емельяново пгт ул. Родниковая (56 м) - Фото 1
    Дом в Красноярский край, Емельяново пгт ул. Родниковая (56 м) - Фото 2
    1 этаж, общая площадь 56м², участок 4 сотки

    Возможно приобрести под сельскую ипотеку 3 Продам брусовой дом 2025 г. постройки.Адрес расположения: п. Емельяново, ул. Родниковая, 9 А (район второй школы).Общая площадь застройки: 56 кв.м. Есть возможность увеличить площадь дома за счет второго...
    • 1 эт.
    • 56 м²
    • 4 сот.
    3 100 000 Р
    Агент
    +7 (983) Показать номер
    Посмотреть контакты
    Дом в Красноярский край, Емельяновский район, Шуваевский сельсовет, ... - Фото 1
    Дом в Красноярский край, Емельяновский район, Шуваевский сельсовет, ... - Фото 2
    2 этажа, общая площадь 179м², участок 12 соток

    Отличное предложение Просмотр поселка организуем Прoдaетcя 2-этажный недостроенный дом плoщадью 179 кв.м на земельнoм учаcтке площaдью 1200 кв.м в коттеджном поceлкe SUNVILL.Пoceлoк SUNVILL это 77 коттеджeй, в 5-ти минутах от г. Kраcнoяpскa.Ориентиp...
    • 2 эт.
    • 179 м²
    • 12 сот.
    2 950 000 Р
    Агент
    +7 (913) Показать номер
    Посмотреть контакты
    Дом в Красноярский край, Емельяновский муниципальный округ, Таскино ... - Фото 1
    Дом в Красноярский край, Емельяновский муниципальный округ, Таскино ... - Фото 2
    1 этаж, общая площадь 54м², участок 976 соток

    Продается дача, 54 кв.м. материал стен шлакоблоки, участок ровный на участке имеется баня. Земли сельскохозяйственного назначения, для ведения садоводства. Есть свет, вода летняя.
    • 1 эт.
    • 54 м²
    • 976 сот.
    2 900 000 Р
    Агент
    +7 (983) Показать номер
    Посмотреть контакты
    Дом в Красноярский край, Емельяново городское поселение, ... - Фото 1
    Дом в Красноярский край, Емельяново городское поселение, ... - Фото 2
    2 этажа, общая площадь 77м², участок 10 соток

    Продется Дом 77,4м.кв + терраса, на земельном участке 10 сот. (ровный). Дом тёплый можно прoживать зимoй, в доме большая кирпичная печь. На участке есть: - баня, с комнатой отдыха; - хозяйственный блок; - уличный туалет; Дороги чистят. Ходит автобус...
    • 2 эт.
    • 77 м²
    • 10 сот.
    3 100 000 Р
    Агент
    +7 (901) Показать номер
    Посмотреть контакты
    Дом в Красноярский край, Красноярск городской округ, с. Арейское ул. ... - Фото 1
    Дом в Красноярский край, Красноярск городской округ, с. Арейское ул. ... - Фото 2
    2 этажа, общая площадь 63м², участок 14 соток

    Продаётся великолепная дача 14 соток в СНТ Березка (Красноярск)Уютный двухэтажный дом из бруса 180 мм — тепло зимой и прохладно летом. Расположение-5 мин пешком до автобусной остановки (круглый год)-20 мин до станции электрички-Новая широкая дорога...
    • 2 эт.
    • 63 м²
    • 14 сот.
    3 099 000 Р
    Агент
    +7 (901) Показать номер
    Посмотреть контакты

    Не нашли подходящего объявления?

    Оставьте заявку, и наши риэлторы подберут купить дом в районе Емельяновского района

    (0)