804 000 Р 9 810 $ или 8 400

Информация об помещении

1
Этаж

Состояние и оснащение

Количество этажей
2
Развернуть
Агент
Агент Ростелеком (Ростелеком)
+7 (913) 533-77-42
Начать чат с агентом

Помещение свободного назначения в Красноярский край, Эвенкийский ...

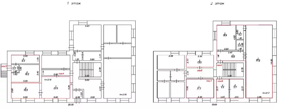
Продается комплекс нежилых помещений в двухэтажном здании общей площадью 237,2 кв. м, расположенное по адресу: Красноярский край, Эвенкийский район, село Байкит, ул. Увачана, д. 8. Здание находится в районе с развитой инфраструктурой, в центральной части села. Объект подключен к централизованному отоплению, электроснабжению, горячему и холодному водоснабжению, а также канализации (септик). Основные характеристики: Год постройки: 1982 Состояние: удовлетворительное Назначение: помещения свободного назначения, с удобной планировкой и высокими потолками, что делает их идеально подходящими для размещения офисов, мастерских и иных коммерческих целей. Земельный участок: предоставлен в долгосрочную аренду (кадастровый номер 88:02:0010136:1) Объект расположен в центральной части села, в жилой зоне, вблизи административных зданий, магазинов и других социальных объектов. Район характеризуется развитой транспортной доступностью: наличие остановки общественного транспорта в непосредственной близости обеспечивает удобное перемещение внутри села и сообщение с соседними населенными пунктами. Окружающая территория включает природные ландшафты, леса, реки и озёра, что создает приятную окружающую среду и дополнительные возможности для развития. Основные преимущества расположения: Отличная транспортная доступность Остановка общественного транспорта в шаговой доступности Возможность организовать стихийную стоянку транспорта Возможность размещения рекламной конструкции на фасаде (по согласованию с Администрацией города) Условия сделки: Продажа осуществляется напрямую от собственника — ПАО Ростелеком . Продажа объекта недвижимости будет проводиться посредством открытого аукциона. О начале торгов и условиях участия будет сообщено дополнительно. Следите за обновлениями. Цена включает НДС 20 и учитывает текущее состояние здания. Не упустите шанс приобрести выгодный актив Звоните, и мы с радостью ответим на все ваши вопросы.

Читать полностью
    Позвонить Написать
    804 000 Р9 810 $ или 8 400
    Агент
    Агент Ростелеком (Ростелеком)
    +7 (913) 533-77-42
    Начать чат с агентом
    Похожие предложения
    Помещение свободного назначения в Владимирская область, Суздальский ... - Фото 1
    Помещение свободного назначения в Владимирская область, Суздальский ... - Фото 2
    Код объекта: 1750387. Уникальное предложение в Суздальском районе: продаётся коммерческий объект свободного назначения в селе Барское-Городище на ул. Центральной Это кирпичный одноэтажный объект площадью 98,1 кв. м с отдельным входом и свободным...
    • 1/1 эт.
    800 000 Р
    Агент
    +7 (915) Показать номер
    Посмотреть контакты
    Помещение свободного назначения в Хакасия, Сорск муниципальное ... - Фото 1
    Помещение свободного назначения в Хакасия, Сорск муниципальное ... - Фото 2
    Продам нестационарный павильон. 72м(6х12). Заведено электричество. Отопление от котла, электрические тены. Сделан хороший ремонт. Полы, покрытие линолеум (доски, утеплитель, ОСБ). Потолок и стены обшивка пластик. Комбинированная, теплая дверь AL. Задняя...
    • 1/1 эт.
    800 000 Р
    Агент
    +7 (913) Показать номер
    Посмотреть контакты
    Помещение свободного назначения в Севастополь ул. Очаковцев, 19 (4 м) - Фото 1
    Помещение свободного назначения в Севастополь ул. Очаковцев, 19 (4 м) - Фото 2
    Помещение свободного назначения 3,6 м расположено на цокольном этаже четырехэтажного торгового центра Плаза - первая линия в центре города. Продается помещение в г. Севастополь, Ленинский район, ул. Очаковцев. Предоставляется круглосуточная охрана в ТЦ...
    • -1/4 эт.
    800 000 Р
    Агент
    +7 (918) Показать номер
    Посмотреть контакты
    Помещение свободного назначения в Астраханская область, Икрянинский ... - Фото 1
    Помещение свободного назначения в Астраханская область, Икрянинский ... - Фото 2
    Продается объект недвижимости Общая площадь: 49,8 кв. мКадастровый номер: 30:04:050101:8861Земельный участок: арендованный, площадь 601 кв. мКадастровый номер земельного участка: 30:04:050101:268Категория: земли населенных пунктовСрок аренды: до 2032...
    • 1/1 эт.
    796 000 Р
    Агент
    +7 (917) Показать номер
    Посмотреть контакты
    Данные получены с сайта ГИС Торги.Наименование: помещение, назначение: нежилое, помещение 39 площадью 9,3 кв.м, этаж 01, кадастровый номер 26:12:010525:2041, по адресу: город Ставрополь, улица Ленина, дом 450-450а.
    • 4 этажа
    798 000 Р
    Агент
    +7 (918) Показать номер
    Посмотреть контакты

    Не нашли подходящего объявления?

    Оставьте заявку, и наши риэлторы подберут псн в районе Байкита

    (0)