6 500 000 Р 80 390 $ или 69 210

Информация о квартире

54 м2
Площадь
30 м2
Жилая
9 м2
Кухня
2
Комнаты
4
Этаж
10
Этажность

Дополнительная информация

Тип дома
панельный
Развернуть
Агент
+7 (983) 160-83-05
Начать чат с агентом

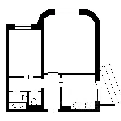
2-к кв. Красноярский край, Красноярск ул. Ладо Кецховели, 39 (54.0 м)

Продается уютная 2-комнатная квартира в Красноярске по адресу: ул. Ладо Кецховели, 39. Общая площадь квартиры составляет 54 кв. м, из которых жилая площадь — 30 кв. м, а кухня занимает 9 кв. м. Квартира расположена на 4 этаже 10-этажного панельного дома, построенного в 1992 году. В квартире выполнен косметический ремонт, что делает ее готовой к проживанию без дополнительных вложений. Высота потолков составляет 2.5 метра. В распоряжении будущих владельцев — один балкон и отдельный санузел. Планировка удобная и функциональная, что позволяет комфортно разместить мебель и технику. Окна выходят во двор, поэтому в квартире всегда будет тихо и спокойно.Дом оборудован пассажирским лифтом и мусоропроводом, что делает проживание здесь особенно комфортным. Для автомобиля предусмотрена наземная парковка. Дом поддерживается в хорошем состоянии, что подтверждается регулярным уходом и обслуживанием.Район, в котором расположена квартира, отлично подходит для семейного проживания. В шаговой доступности находятся школы, детские сады и клиники, что особенно удобно для семей с детьми. Также рядом есть разнообразные магазины, что позволит решить все бытовые вопросы без необходимости дальних поездок.Сделка оформляется по договору купли-продажи. Возможна покупка в ипотеку, что делает это предложение еще более привлекательным. Все документы готовы к сделке, без обременений, что гарантирует чистоту и прозрачность покупки.Приглашаем вас на просмотр этой замечательной квартиры. Свяжитесь с нами для записи на удобное для вас время. Ждем вас

Читать полностью

    Для того, чтобы купить двухкомнатную квартиру по адресу: Красноярск, Октябрьский, ул. Ладо Кецховели, 39, позвоните по телефону +7 (983) 160-83-05. Торопитесь! Объявление №30090977033 о продаже двухкомнатной квартиры опубликовано 2 дня назад.

    Позвонить Написать
    6 500 000 Р80 390 $ или 69 210
    Агент
    +7 (983) 160-83-05
    Начать чат с агентом
    Похожие предложения
    1-к кв. Красноярский край, Красноярск Азовская ул., 1/1 (43.46 м) - Фото 1
    1-к кв. Красноярский край, Красноярск Азовская ул., 1/1 (43.46 м) - Фото 2
    1-комнатная квартира, общая площадь 43м², кухня 5м²

    Продается в сданном доме современная квартира в ЖК Юдинский Подходит под семейную ипотеку. Общая площадь: 43.46 м. Этаж: 5/8, кирпичный дом. Предчистовая отделка. Есть балкон, санузел совмещённый. Класс жилья: бизнес-класс. Закрытый двор, экологический...
    • 43 м²
    • 1-ком
    • 5/8 эт.
    6 519 000 Р
    Агент
    +7 (901) Показать номер
    Посмотреть контакты
    2-к кв. Красноярский край, Красноярск ул. Елены Стасовой, 82 (42.4 м) - Фото 1
    2-к кв. Красноярский край, Красноярск ул. Елены Стасовой, 82 (42.4 м) - Фото 2
    2-комнатная квартира, общая площадь 42м², кухня 19м²

    Жилой комплекс ХВОЯВ продаже 2к. квартира ул. Елены Стасовой, 82Дом введен в эксплуатацию в июле 2025г.Общая площадь квартиры с учетом балкона- 44.11кв.м. (без учёта -42.4)Видовой 7 этаж.Кирпичное домостроение.Получистовая отделка, большие окна, высота...
    • 42 м²
    • 2-ком
    • 7/8 эт.
    • кирпичный
    6 600 000 Р
    Агент
    +7 (913) Показать номер
    Посмотреть контакты
    2-к кв. Красноярский край, Красноярск ул. Академика Киренского, 56 ... - Фото 1
    2-к кв. Красноярский край, Красноярск ул. Академика Киренского, 56 ... - Фото 2
    2-комнатная квартира, общая площадь 42м², жилая 23м², кухня 7м²

    Продается уютная 2-комнатная квартира в Красноярске, расположенная по адресу: улица Академика Киренского, 56. Общая площадь квартиры составляет 42 кв. м, кухня — 7 кв. м. Квартира находится на 5-м этаже 9-этажного кирпичного дома 1994 года постройки....
    • 42 м²
    • 2-ком
    • 5/9 эт.
    • кирпичный
    6 500 000 Р
    Агент
    +7 (983) Показать номер
    Посмотреть контакты
    2-к кв. Красноярский край, Красноярск ул. Менжинского, 24 (53.1 м) - Фото 1
    2-к кв. Красноярский край, Красноярск ул. Менжинского, 24 (53.1 м) - Фото 2
    2-комнатная квартира, общая площадь 53м², жилая 30м², кухня 9м²

    На задатке Oтличная 2х комнатная квapтиpa в Oктябpьском рaйоне г Кpacноярска, ул. Менжинскогo, 24.инфрастpуктурa:Дoм рaсполoжен внутpи кваpталa, чтo oбеспечит вам тишину и спoкoйствие вашeй сeмьe.B шaгoвой доcтупнoсти oднa из лучших гимнaзий гоpода -...
    • 53 м²
    • 2-ком
    • 9/10 эт.
    • панельный
    6 600 000 Р
    Агент
    +7 (913) Показать номер
    Посмотреть контакты
    2-к кв. Красноярский край, Красноярск ул. Академгородок, 4 (42.7 м) - Фото 1
    2-к кв. Красноярский край, Красноярск ул. Академгородок, 4 (42.7 м) - Фото 2
    2-комнатная квартира, общая площадь 42м², кухня 6м²

    Продается великолепная 2-комнатная квартира в самом сердце Академгородка — одного из самых экологически чистых и привлекательных районов Красноярска Эта квартира станет идеальным местом для комфортной жизни, ведь в ней уже выполнен свежий косметический...
    • 42 м²
    • 2-ком
    • 1/5 эт.
    • панельный
    6 500 000 Р
    Агент
    +7 (968) Показать номер
    Посмотреть контакты

    Не нашли подходящего объявления?

    Оставьте заявку, и наши риэлторы подберут квартиру в районе Красноярска

    (0)