Россия, Красноярский край, Красноярск, имени газеты Красноярский Рабочий просп., 81
3 300 000 Р 40 630 $ или 35 170

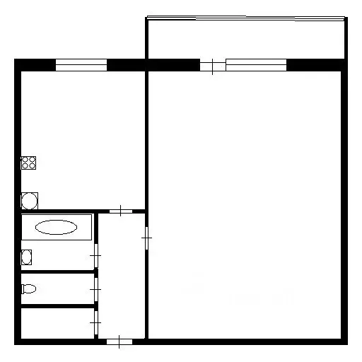
Информация о квартире

29 м2
Площадь
20 м2
Жилая
6 м2
Кухня
1
Комната
4
Этаж
5
Этажность

Дополнительная информация

Тип дома
кирпичный
Развернуть
Агент
+7 (913) 511-28-98
Начать чат с агентом

1-к кв. Красноярский край, Красноярск имени газеты Красноярский ...

Продается уютная однокомнатная квартира площадью 29 кв. м, расположенная на 4 этаже 5-этажного кирпичного дома, построенного в 1960 году. Жилая площадь составляет 20 кв. м, а кухня — 6 кв. м. Высота потолков — 2,54 метра. Окна выходят на улицу, обеспечивая хорошую освещенность.Квартира без ремонта — вы можете воплотить в жизнь свои дизайнерские идеи и создать идеальное пространство для жизни. Санузел совмещенный, что особенно удобно для компактной планировки. Изюминкой квартиры является наличие балкона, где приятно проводить вечера или устраивать мини-оранжерею.Дом находится в отличном состоянии, несмотря на год постройки. Кирпичные стены обеспечивают хорошую тепло- и звукоизоляцию, а значит, зимой будет тепло, а летом — не слишком жарко. Для автовладельцев предусмотрена наземная парковка, что особенно удобно в условиях города.Район предлагает развитую инфраструктуру: в шаговой доступности находятся школы и детские сады, что прекрасно подойдет для семей с детьми. Также в районе есть магазины, поэтому можно быстро и удобно совершать покупки.Квартира продается без обременений. Возможна покупка в ипотеку. Все документы готовы к сделке. Если вы ищете уютное и перспективное жилье для себя или как инвестицию, это предложение для вас.( аренда квартиры востребована) Приглашаем вас на просмотр Звоните и записывайтесь на удобное для вас время. Не упустите возможность приобрести эту квартиру и воплотить в ней свои мечты Объект недвижимости продается через Агента, комиссия составляет 3 от стоимости квартиры.

Читать полностью

    Для того, чтобы купить однокомнатную квартиру по адресу: Красноярск, Кировский, имени газеты Красноярский Рабочий просп., 81, позвоните по телефону +7 (913) 511-28-98. Торопитесь! Объявление №30091375797 о продаже однокомнатной квартиры опубликовано 26 октября 2025.

    Позвонить Написать
    3 300 000 Р40 630 $ или 35 170
    Агент
    +7 (913) 511-28-98
    Начать чат с агентом
    Похожие предложения
    1-к кв. Красноярский край, Красноярск ул. Щорса, 9 (32.8 м) - Фото 1
    1-к кв. Красноярский край, Красноярск ул. Щорса, 9 (32.8 м) - Фото 2
    1-комнатная квартира, общая площадь 32м², жилая 18м², кухня 6м²

    За объект уже внесли авансПродается уютная однокомнатная квартира на комфортном этаже.Просторная жилая комната площадью 18.9 кв. м станет отличным местом для отдыха и работы. В квартире есть совмещенный санузел и один балкон, где можно насладиться свежим...
    • 32 м²
    • 1-ком
    • 3/5 эт.
    • панельный
    3 350 000 Р
    Агент
    +7 (913) Показать номер
    Посмотреть контакты
    1-к кв. Красноярский край, Красноярск Новая ул., 52 (30.5 м) - Фото 1
    1-к кв. Красноярский край, Красноярск Новая ул., 52 (30.5 м) - Фото 2
    1-комнатная квартира, общая площадь 30м², жилая 17м², кухня 6м²

    Продам 1-комнатную квартиру в панельном доме в Первомайском мкр. Рядом с домом библиотека, Почта России, магазины, остановки общественного транспорта. В квартире есть встроенный шкаф в коридоре, кухонный гарнитур. Балкон застеклен ПВХ рамами.Чистая продажа,...
    • 30 м²
    • 1-ком
    • 5/5 эт.
    • панельный
    3 300 000 Р
    Агент
    +7 (913) Показать номер
    Посмотреть контакты
    1-к кв. Красноярский край, Красноярск ул. Алеши Тимошенкова, 191 (34.6 ... - Фото 1
    1-к кв. Красноярский край, Красноярск ул. Алеши Тимошенкова, 191 (34.6 ... - Фото 2
    1-комнатная квартира, общая площадь 34м², жилая 17м², кухня 8м²

    Продаётся уютная однокомнатная квартира площадью 34.6 квадратных метров в спокойном районе города Красноярска по адресу: микрорайон Водников, улица Алёши Тимошенкова, дом 191. Квартира расположена на четвёртом этаже пятиэтажного панельного дома, построенного...
    • 34 м²
    • 1-ком
    • 4/5 эт.
    • панельный
    3 300 000 Р
    Агент
    +7 (913) Показать номер
    Посмотреть контакты
    1-к кв. Красноярский край, Красноярск ул. Щорса, 66 (28.0 м) - Фото 1
    1-к кв. Красноярский край, Красноярск ул. Щорса, 66 (28.0 м) - Фото 2
    1-комнатная квартира, общая площадь 28м², жилая 12м², кухня 9м²

    Предлагаю купить 1 комнатную квартиру в Кировском районе по ул. Щорса. Это не просто комната в общежитии, а полностью изолированная квартира с отельным санузлом и кухней-нишей. Идеально для студентов, инвестиций или первого жилья. Натяжные потолки, линолеум....
    • 28 м²
    • 1-ком
    • 9/9 эт.
    • панельный
    3 300 000 Р
    Агент
    +7 (983) Показать номер
    Посмотреть контакты
    1-комнатная квартира, общая площадь 28м²

    Жилое помещение, вид права: собственность, кадастровый номер: 24:50:0500425:1125, площадь: 28.3, адрес: Красноярский край, г. Красноярск, пр-т Машиностроителей, д. 35, кв. 20. Дата государственной регистрации: 19.01.2023. Основание государственной регистрации:...
    • 28 м²
    • 1-ком
    • 3/3 эт.
    3 300 000 Р
    Агент
    +7 (913) Показать номер
    Посмотреть контакты

    Не нашли подходящего объявления?

    Оставьте заявку, и наши риэлторы подберут квартиру в районе Красноярска

    (0)