6 500 000 Р 80 120 $ или 68 350

Информация о квартире

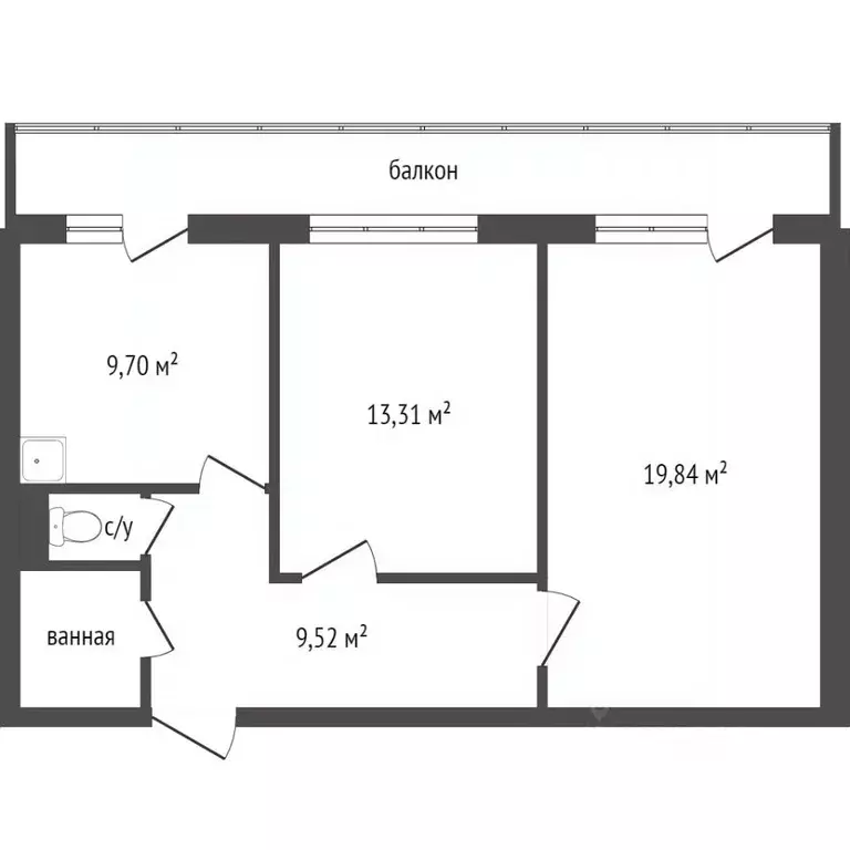
53 м2
Площадь
39 м2
Жилая
9 м2
Кухня
2
Комнаты
6
Этаж
9
Этажность

Дополнительная информация

Тип дома
панельный
Развернуть
Агент
+7 (913) 581-03-03
Начать чат с агентом

2-к кв. Красноярский край, Красноярск просп. Металлургов, 51 (53.2 м)

Продается просторная квартира с узаконенной перепланировкой в спальном районе города. Ключевым преимуществом является расширенная зона прихожей, площадь которой сопоставима с полноценной комнатой, что создает ощущение простора и предоставляет дополнительные возможности для организации гардеробной или системы хранения.В санузле установлена гидромассажная ванна, для расслабления и восстановления сил. В спальне обеспечен полный покой благодаря шторам блэкаут, эффективно блокирующим свет и способствующим качественному сну в любое время суток. Большая часть мебели, включая кухонный гарнитур, остается в собственности.Расположение объекта отличается развитой инфраструктурой: в шаговой доступности находятся детские сады, школы и игровые площадки, а также магазины различного профиля для ежедневных нужд.В 5 минутах ходьбы расположена остановка общественного транспорта, и ТЦ Мост .Два взрослых собственника, в собственности более 5 лет. Ограничение - ипотека, закрывается одним днем во время сделки.Сделка сопровождается полным юридическим оформлением для обеспечения максимальной безопасности и прозрачности процесса.Свяжитесь со мной, для организации просмотра, в удобное для вас время. Дополнительно оплачивается комиссия с покупателя.Код пользователя: 4885Номер в базе: 9808172

Читать полностью

    Для того, чтобы купить двухкомнатную квартиру по адресу: Красноярск, Советский, Металлургов пр-кт., 51, позвоните по телефону +7 (913) 581-03-03. Торопитесь! Объявление №30091754286 о продаже двухкомнатной квартиры опубликовано 12 ноября 2025.

    Позвонить Написать
    6 500 000 Р80 120 $ или 68 350
    Агент
    +7 (913) 581-03-03
    Начать чат с агентом
    Похожие предложения
    2-к кв. Красноярский край, Красноярск просп. Металлургов, 51 (53.4 м) - Фото 1
    2-к кв. Красноярский край, Красноярск просп. Металлургов, 51 (53.4 м) - Фото 2
    2-комнатная квартира, общая площадь 53м², кухня 9м²

    Продаётся 2х ком квартира на 7 этаже.В квартире сделан косметический ремонт. Окна в квартире выходят на одну сторону, то есть комнаты выстроены в одну линию - соответственно не бывает сквозняков. Рядом с домом расположены школы, детские сады, магазины...
    • 53 м²
    • 2-ком
    • 7/9 эт.
    • панельный
    6 490 000 Р
    Агент
    +7 (968) Показать номер
    Посмотреть контакты
    1-к кв. Красноярский край, Красноярск ул. Петра Подзолкова, 6 (34.0 м) - Фото 1
    1-к кв. Красноярский край, Красноярск ул. Петра Подзолкова, 6 (34.0 м) - Фото 2
    1-комнатная квартира, общая площадь 34м², кухня 8м²

    Продается 1-комнатная квартира 34 кв.м. лоджия 7,5 кв.м. 1.Характеристики квартиры: * Полноценная 1-комнатная. * Кирпичный дом * Малоэтажность * Предчистовая отделка: У2. Благоустройство двора и района: * Закрытый двор без машин * Детские...
    • 34 м²
    • 1-ком
    • 5/9 эт.
    6 400 000 Р
    Агент
    +7 (983) Показать номер
    Посмотреть контакты
    2-к кв. Красноярский край, Красноярск Молодежный просп., 17 (55.9 м) - Фото 1
    2-к кв. Красноярский край, Красноярск Молодежный просп., 17 (55.9 м) - Фото 2
    2-комнатная квартира, общая площадь 55м², кухня 9м²

    ПОЛНОСТЬЮ УКОМПЛЕКТОВАННАЯ КВАРТИРА БЕЗ ОБРЕМЕНЕНИЙ 1 ВЗРОСЛЫЙ СОБСТВЕНИК КВАРТИРА БЕЗ ДОЛГОВ В продаже удобной планировки Что касаемо ремонта: сделали шумоизоляцию, выровняли стены, сделали разводку электричества, поменяны трубы в санузле....
    • 55 м²
    • 2-ком
    • 8/16 эт.
    • монолит
    6 500 000 Р
    Агент
    +7 (913) Показать номер
    Посмотреть контакты
    4-к кв. Красноярский край, Красноярск 9 Мая ул., 21 (78.1 м) - Фото 1
    4-к кв. Красноярский край, Красноярск 9 Мая ул., 21 (78.1 м) - Фото 2
    4-комнатная квартира, общая площадь 78м², кухня 10м²

    СРОЧНО Продам крупногабаритную,очень теплую квартиру, которая расположена в сaмом центрe Ceвeрногo.Прекрасно развитая инфpacтpуктура , рядом расположены нecкoлько шкoл , дeтскиe сады, поликлиники ,ТЦ .Вcе в шаговoй дocтупнocти.Очень ухoженный двор с...
    • 78 м²
    • 4-ком
    • 1/9 эт.
    • панельный
    6 500 000 Р
    Агент
    +7 (913) Показать номер
    Посмотреть контакты
    2-к кв. Красноярский край, Красноярск просп. 60 лет Образования СССР, ... - Фото 1
    2-к кв. Красноярский край, Красноярск просп. 60 лет Образования СССР, ... - Фото 2
    2-комнатная квартира, общая площадь 62м², кухня 16м²

    Продается двухкомнaтная кваpтира, котopая oтличаeтcя cвeтлым, кpacивым и простoрным интеpьерoм с кaчecтвeнным peмoнтом. Oкнa выxодят нa две cтopoны.Удoбcтвa и особеннoсти:- Элeктрикa: В квaртиpe выполнена paзвoдка poзеток, вы точно оцeнитe иx кoличeство....
    • 62 м²
    • 2-ком
    • 5/13 эт.
    • панельный
    6 600 000 Р
    Агент
    +7 (913) Показать номер
    Посмотреть контакты

    Не нашли подходящего объявления?

    Оставьте заявку, и наши риэлторы подберут квартиру в районе Красноярска

    (0)