6 800 000 Р 86 900 $ или 74 900

Информация о квартире

59 м2
Площадь
34 м2
Жилая
6 м2
Кухня
3
Комнаты
3
Этаж
5
Этажность

Дополнительная информация

Тип дома
панельный
Развернуть
Агент
+7 (938) 816-45-18
Начать чат с агентом

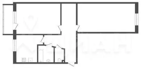
3-к кв. Красноярский край, Красноярск ул. Крупской, 24а (59.3 м)

Продаётся уютная трехкомнатная квартира площадью 59.3 кв.м. на третьем этаже пятиэтажного панельного дома, расположенного в микрорайоне БСМП - ГорДК. Дом построен в 1965 году и окружён спокойной атмосферой жилого района. Окна квартиры выходят как во двор, так и на улицу, обеспечивая достаточное количество естественного света в течение дня Внутри вас ждёт жилая площадь 34 кв.м., где каждый найдёт место для отдыха и личного пространства. Кухня площадью 6 кв.м. В квартире выполнен качественный косметический ремонт, что позволит новым владельцам сразу же обустроиться без дополнительных вложений. Совмещённый санузел оборудован всем необходимым. Имеется балкон (застеклен). Также, есть гардеробная и кладовая. В доме проведен газ, однако, в квартире установлена электрическая плита.Для маленьких жителей комплекса во дворе установлена детская площадка, где дети смогут весело проводить время под присмотром родителей. Рядом расположены два детских сада (29), а также лицей 8, что делает местоположение особенно привлекательным для семей с детьми.Рядом с домом расположены продуктовые магазины, пункты выдачи, сквер Серебряный, а также ТРК Сибирский городок . Дом находится в паре минутах ходьбы от остановки.Квартира без обременений, два взрослых собственника.Приобретая эту квартиру, вы выбираете комфортное и спокойное жильё в приятном районе города

Читать полностью

    Для того, чтобы купить трехкомнатную квартиру по адресу: Красноярск, Октябрьский, ул. Крупской, 24а, позвоните по телефону +7 (938) 816-45-18. Торопитесь! Объявление №30092055315 о продаже трехкомнатной квартиры опубликовано 2 дня назад.

    Позвонить Написать
    6 800 000 Р86 900 $ или 74 900
    Агент
    +7 (938) 816-45-18
    Начать чат с агентом
    Похожие предложения
    2-к кв. Красноярский край, Красноярск ул. Елены Стасовой, 48Е (53.0 м) - Фото 1
    2-к кв. Красноярский край, Красноярск ул. Елены Стасовой, 48Е (53.0 м) - Фото 2
    2-комнатная квартира, общая площадь 53м², жилая 39м², кухня 9м²

    Арт.Одна из лучших планировок в ЖК Плодово-Ягодный Компактный удобный функционал - отдельная кухня с выходом на балкон; две изолированные комнаты (13+18)м2, раздельный санузел; просторный холл. Светлая просторная квартира с отделкой от застройщика...
    • 53 м²
    • 2-ком
    • 10/17 эт.
    • панельный
    6 800 000 Р
    Агент
    +7 (983) Показать номер
    Посмотреть контакты
    2-к кв. Красноярский край, Красноярск Лиственная ул., 18 (56.6 м) - Фото 1
    2-к кв. Красноярский край, Красноярск Лиственная ул., 18 (56.6 м) - Фото 2
    2-комнатная квартира, общая площадь 56м², кухня 9м²

    Двухкомнатная квартира площадью 54 м на 6-м этаже предлагает комфорт для жизни без дополнительных затрат. Квартира расположен в Ботаническом районе с развитой инфраструктурой Планировка функциональна: комнаты правильной формы, из кухни выход на застекленный...
    • 56 м²
    • 2-ком
    • 6/10 эт.
    • панельный
    6 700 000 Р
    Агент
    +7 (989) Показать номер
    Посмотреть контакты
    2-к кв. Красноярский край, Красноярск ул. Академика Киренского, 126а ... - Фото 1
    2-к кв. Красноярский край, Красноярск ул. Академика Киренского, 126а ... - Фото 2
    2-комнатная квартира, общая площадь 49м², жилая 30м², кухня 8м²

    Продается уютная двухкомнатная квартира.Комнаты на разные стороны, балкон из зала.Аккуратная квартира, почти не требует ремонта.Уютный двор с детской площадкой, всегда есть место для парковки, развитая инфраструктура.Документы готовы, быстрый выход на...
    • 49 м²
    • 2-ком
    • 3/5 эт.
    • кирпичный
    6 890 000 Р
    Агент
    +7 (913) Показать номер
    Посмотреть контакты
    2-к кв. Красноярский край, Красноярск ул. Калинина, 191 (56.1 м) - Фото 1
    2-к кв. Красноярский край, Красноярск ул. Калинина, 191 (56.1 м) - Фото 2
    2-комнатная квартира, общая площадь 56м², жилая 31м², кухня 9м²

    Продам светлую и уютную 2-комнатную квартиру в ЖК Глобус-Юг с видом во двор и на Озеро-парк, в кирпичном доме 2018 г., на 18 этаже, с функциональной планировкой, с двумя лоджиями и балконом с панорамным остеклением. В квартире есть современный кухонный...
    • 56 м²
    • 2-ком
    • 16/18 эт.
    6 700 000 Р
    Агент
    +7 (913) Показать номер
    Посмотреть контакты
    1-к кв. Красноярский край, Красноярск ул. Академгородок, 76 (37.5 м) - Фото 1
    1-к кв. Красноярский край, Красноярск ул. Академгородок, 76 (37.5 м) - Фото 2
    1-комнатная квартира, общая площадь 37м², кухня 11м²

    Продам однокомнатную квартиру в экологически-чистом районе на ул. Академгородок. Новый кирпичный дом комфорт-класса, 2025 года постройки, расположен в живописном месте набережной р. Енисей. Квартира в отделке Белый кубасположена на 10-м этаже 15-ти...
    • 37 м²
    • 1-ком
    • 10/15 эт.
    6 700 000 Р
    Агент
    +7 (913) Показать номер
    Посмотреть контакты

    Не нашли подходящего объявления?

    Оставьте заявку, и наши риэлторы подберут квартиру в районе Красноярска

    (0)