7 900 000 Р 99 600 $ или 85 070

Информация о помещении и здании

1
Этаж
3
Этажность
Развернуть
Агент
+7 (913) 181-18-76
Начать чат с агентом

Офис в Красноярский край, Красноярск ул. Шахтеров, 14 (78 м)

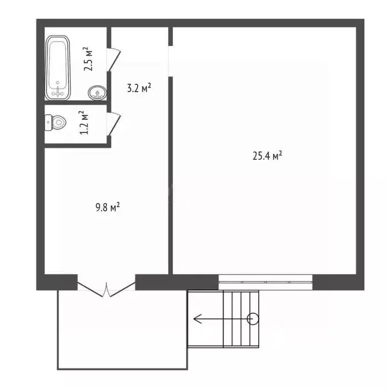
Лучшее предложение на первой линии Офисное помещение площадью 78 кв. м. в Советском районе на улице Шахтеров (перекресток со Спандаряна). Расположено на первом этаже жилого дома с отдельным входом со стороны Шахтеров.Готовое решение для стабильной и эффективной работы бизнеса. Варианты использования - для аптеки, агентства, нотариуса, салона красоты. Ключевым преимуществом является собственный вход и доступные парковки на Спандаряна, что обеспечивает независимость и комфорт для сотрудников и клиентов. Объект находится в зоне с отличной транспортной доступностью, что упрощает логистику и делает его легко достижимым из любой точки города. Планировка полностью продумана для ведения бизнеса: пространство включает зону ресепшена (холл 31 кв.м.) , два кабинета 12 и 15 кв.м., санузел и гардероб для сотрудников. Все помещения с чистовой отделкой, что позволяет начать работу сразу после заключения сделки без дополнительных затрат и времени на организацию рабочей среды. Состояние объекта отличное, проведены все необходимые коммуникации, обеспечена сигнализация, кондиционирование помещений.Звоните. Показ в любое время. Дополнительно оплачиваются услуги подбора объекта недвижимости с покупателя.Услуги подбора объекта недвижимости составляют 1.5 от стоимости объекта недвижимости.Сделки с агентствами по недвижимости происходят на основании Соглашения о совместной сделке .Код пользователя: 174649Номер в базе:

Читать полностью
    Позвонить Написать
    7 900 000 Р99 600 $ или 85 070
    Агент
    +7 (913) 181-18-76
    Начать чат с агентом
    Похожие предложения
    Офис в Красноярский край, Красноярск ул. Шахтеров, 14 (78 м) - Фото 1
    Офис в Красноярский край, Красноярск ул. Шахтеров, 14 (78 м) - Фото 2
    1-й этаж, всего 3 этажа

    Лучшее предложение на первой линии Офисное помещение площадью 78 кв. м. в Советском районе на улице Шахтеров (перекресток со Спандаряна). Расположено на первом этаже жилого дома с отдельным входом со стороны Шахтеров.Готовое решение для стабильной и...
    • 1/3 эт.
    7 900 000 Р
    Агент
    +7 (913) Показать номер
    Посмотреть контакты
    Офис в Красноярский край, Красноярск ул. Партизана Железняка, 19Д (54 ... - Фото 1
    Офис в Красноярский край, Красноярск ул. Партизана Железняка, 19Д (54 ... - Фото 2
    2-й этаж, всего 3 этажа

    Арт.Продам коммерческое помещение в ЖК Перья , расположенного на берегу Енисея.Офис расположен в престижном бизнес-районе, что гарантирует удобный доступ к ключевым деловым центрам города, а также развитую инфраструктуру с множеством кафе, ресторанов...
    • 2/3 эт.
    7 999 000 Р
    Агент
    +7 (983) Показать номер
    Посмотреть контакты
    Офис в Красноярский край, Красноярск Северный мкр, ул. Водопьянова, 2 ... - Фото 1
    Офис в Красноярский край, Красноярск Северный мкр, ул. Водопьянова, 2 ... - Фото 2
    1-й этаж, всего 10 этажей

    Нежилое помещение площадью 40 кв. м, с раздельным санузлом, расположено на первом этаже жилого дома в оживленном районе с высокой проходимостью. Отдельный вход обеспечивает автономность, что делает объект привлекательным для коммерческого использования....
    • 1/10 эт.
    7 800 000 Р
    Агент
    +7 (913) Показать номер
    Посмотреть контакты
    Офис в Красноярский край, Красноярск Северный мкр, ул. Водопьянова, 2 ... - Фото 1
    Офис в Красноярский край, Красноярск Северный мкр, ул. Водопьянова, 2 ... - Фото 2
    1-й этаж, всего 10 этажей

    Нежилое помещение площадью 40 кв. м, с раздельным санузлом, расположено на первом этаже жилого дома в оживленном районе с высокой проходимостью. Отдельный вход обеспечивает автономность, что делает объект привлекательным для коммерческого использования....
    • 1/10 эт.
    7 800 000 Р
    Агент
    +7 (913) Показать номер
    Посмотреть контакты
    Офис в Воронежская область, Воронеж Средне-Московская ул., 62а (61 м) - Фото 1
    Офис в Воронежская область, Воронеж Средне-Московская ул., 62а (61 м) - Фото 2
    1-й этаж, всего 23 этажа

    • Местоположение: ЖК Атлант находится в одном из перспективных районов Воронежа, что обеспечивает высокий поток потенциальных клиентов. Удобная транспортная доступность и близость к жилым домам создают идеальные условия для успешного ведения бизнеса.•...
    • 1/23 эт.
    7 900 000 Р
    Агент
    +7 (980) Показать номер
    Посмотреть контакты

    Не нашли подходящего объявления?

    Оставьте заявку, и наши риэлторы подберут офис в районе Красноярска

    (0)