Свободного назначения 9 500 000 Р Свободного назначения

21 сентября 2025

Реализация объекта недвижимости приостановлена

Информация об помещении

14
Этаж

Состояние и оснащение

Количество этажей
14
Развернуть

Помещение свободного назначения в Красноярский край, Красноярск ...

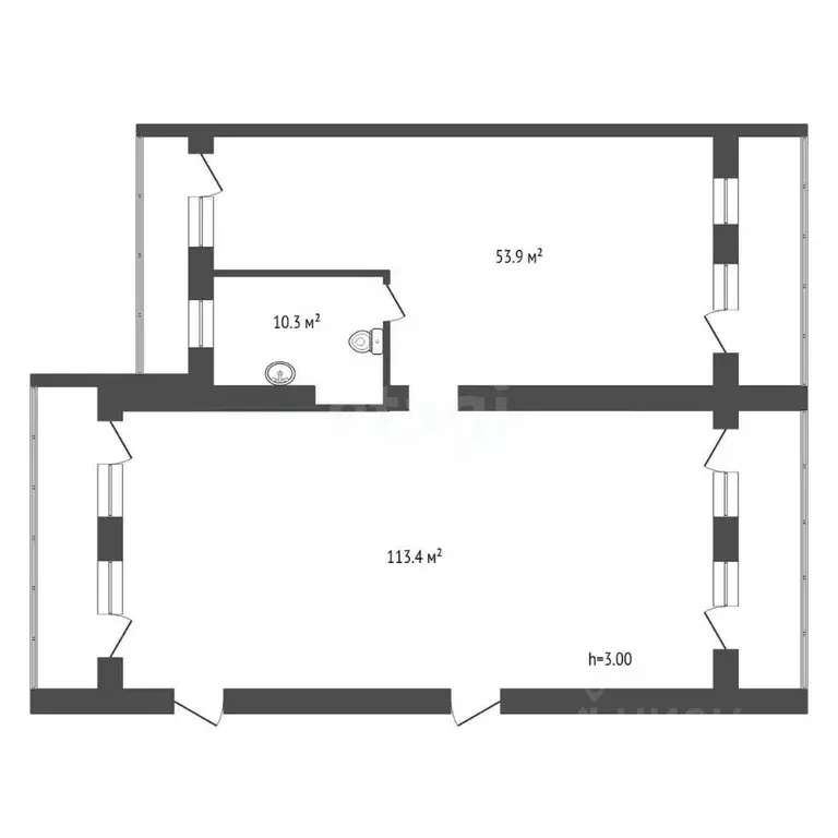
Продам нежилое помещение площадью - 177,6 квадратных метров.Располагается на крыше жилого дома, единственное помещение на крыше, вход через подъезд.Помещение в черновом ремонте, состоит из трех комнат, имеется санузел, четыре балкона по два на обе стороны, три мокрые точки, так же из помещения есть выход на террасу площадью около 300 м2 (ключ и возможность туда попасть только у собственника помещения )Удобные подъездные пути, наличие бесплатных парковочных мест.Дополнительно оплачиваются услуги подбора объекта недвижимости с покупателя.Услуги подбора объекта недвижимости составляют 1.5 от стоимости объекта недвижимости.Сделки с агентствами по недвижимости происходят на основании Соглашения о совместной сделке .Код пользователя: 156847Номер в базе: 7660092

Читать полностью

    Реализация объекта недвижимости приостановлена

    Не нашли подходящего объявления?

    Оставьте заявку, и наши риэлторы подберут псн в районе Красноярска

    (0)