Реализация объекта недвижимости приостановлена

Информация об помещении

1
Этаж

Состояние и оснащение

Количество этажей
1
Развернуть

Торговая площадь в Красноярский край, Красноярск ул. Молокова, 5Д (59 ...

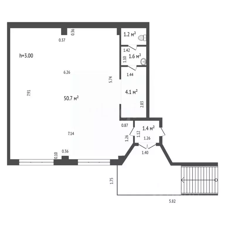
Продается торговое помещение площадью 59 м расположенное в деловом центре Взлетки по адресу Молокова, 5ДПОКУПАТЕЛЬ КОМИССИЮ НЕ ОПЛАЧИВАЕТОбъект находится на первой линии, что гарантирует высокую проходимость и привлекательность для розничного бизнеса, услуг или общественного питания. Планировка включает основной торговый зал, подсобное помещение для хранения товаров и оборудованный санузел, что обеспечивает комфортную работу сотрудников и удобство для клиентов. Высота потолков и свободная планировка позволяют адаптировать пространство под различные форматы бизнеса — от магазина до кафе или офиса. Здание подключено ко всем необходимым коммуникациям: электричество, водоснабжение, канализация, вентиляция. Возможна установка дополнительного оборудования, включая системы кондиционирования и охранной сигнализации. Район отличается развитой инфраструктурой: в шаговой доступности находятся банки, кафе, аптеки, супермаркеты и остановки общественного транспорта. Удобный подъезд и парковка упрощают логистику для поставщиков и клиентов. Объект подходит для покупки как под собственный бизнес, так и для инвестиций — стабильный пешеходный трафик и отсутствие дефицита арендаторов в этом районе обеспечивают высокую ликвидность. Возможна покупка в ипотеку с одобрением на выгодных условиях. Проведем полную юридическую проверку документации и сопроводим сделку на всех этапах. Для просмотра и дополнительных деталей свяжитесь с нами в удобное время.Дополнительно оплачиваются услуги подбора объекта недвижимости с покупателя.Услуги подбора объекта недвижимости составляют 1.5 от стоимости объекта недвижимости.Сделки с агентствами по недвижимости происходят на основании Соглашения о совместной сделке .Код пользователя: 42966Номер в базе: 8520002

Читать полностью

    Реализация объекта недвижимости приостановлена

    Не нашли подходящего объявления?

    Оставьте заявку, и наши риэлторы подберут торговое помещение в районе Красноярска

    (0)