Россия, Красноярский край, Красноярск, ул. Академика Вавилова, 3/1

Реализация объекта недвижимости приостановлена

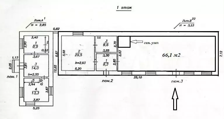
Информация о помещении и здании

1
Этаж
Развернуть

Офис, 66.1 м

Офисно-складской центр на Вавилова, 3 сдаст в аренду помещение свободного назначения. Первая линия, автобусная остановка. Коммунальные платежи включены. эл. энергия по счетчику.

Читать полностью

    Реализация объекта недвижимости приостановлена

    Не нашли подходящего объявления?

    Оставьте заявку, и наши риэлторы подберут офис в районе Красноярска

    (0)