1 600 000 Р 19 670 $ или 16 990

Информация о квартире

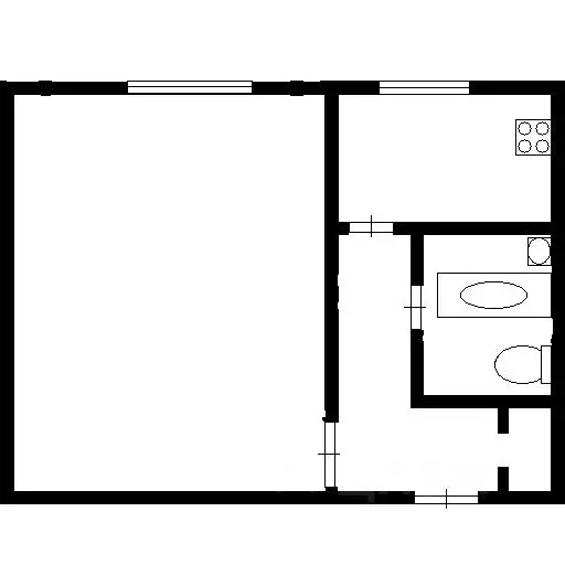
30 м2
Площадь
6 м2
Кухня
1
Комната
6
Этаж
6
Этажность

Дополнительная информация

Тип дома
кирпичный
Развернуть
Агент
+7 (913) 032-79-24
Начать чат с агентом

1-к кв. Красноярский край, Норильск Комсомольская ул., 34к1 (30.9 м)

Однокомнатная квартира расположена на шестом этаже кирпичного дома, что обеспечивает высокий уровень звуко- и теплоизоляции, создавая комфортный микроклимат в любое время года. Планировка функциональна и предполагает несколько вариантов расстановки мебели. Окна выходят во двор, гарантируя спокойную атмосферу и отсутствие уличного шума. Входная группа дополнительно укреплена металлической дверью. Состояние квартиры оценивается как удовлетворительное — полы покрыты линолеумом, однако объект требует косметического ремонта, что открывает возможность для покупателя адаптировать пространство под собственные предпочтения без необходимости масштабной перепланировки. При продаже возможно согласование передачи существующей мебели и бытовой техники. Ключевым преимуществом является развитая инфраструктура района: в шаговой доступности расположены супермаркеты, аптеки, банковские отделения, салоны красоты, а также детские сады и школы. Транспортная доступность обеспечена за счет нескольких автобусных остановок с маршрутами в разные районы города, что упрощает ежедневные поездки. Это предложение представляет практичный вариант для инвестирования или проживания с потенциалом увеличения стоимости после незначительных вложений. Код пользователя: 174381Номер в базе:

Читать полностью

    Для того, чтобы купить однокомнатную квартиру по адресу: Норильск, ул. Комсомольская, 34к1, позвоните по телефону +7 (913) 032-79-24. Торопитесь! Объявление №30091335592 о продаже однокомнатной квартиры опубликовано 2 дня назад.

    Позвонить Написать
    1 600 000 Р19 670 $ или 16 990
    Агент
    +7 (913) 032-79-24
    Начать чат с агентом
    Похожие предложения
    1-к кв. Красноярский край, Норильск Комсомольская ул., 43А (30.4 м) - Фото 1
    1-к кв. Красноярский край, Норильск Комсомольская ул., 43А (30.4 м) - Фото 2
    1-комнатная квартира, общая площадь 30м², жилая 19м², кухня 6м²

    Продается однокомнатная квартира в хорошем районе, отличный вариант для молодых людей и студентов.Это очень отличный вариант, где можно реализовать все свои дизайнерские идеи. Так же, квартира отлично подойдет для тех, кто хочет вложиться в недвижимость...
    • 30 м²
    • 1-ком
    • 3/5 эт.
    • панельный
    1 600 000 Р
    Агент
    +7 (913) Показать номер
    Посмотреть контакты
    Студия Красноярский край, Норильск пл. Металлургов, 29 (21.3 м) - Фото 1
    Студия Красноярский край, Норильск пл. Металлургов, 29 (21.3 м) - Фото 2
    студия, общая площадь 21м², жилая 13м², кухня 3м²

    Код объекта: 1869903. Срочно продаётся студия гостиничного типа в Норильске, расположенная на площади Металлургов, 29. Студия находится на 9 этаже 9-этажного панельного дома, построенного в 1975 году. Общая площадь квартиры составляет 21,3 кв. м. При...
    • 21 м²
    • студия-ком
    • 9/9 эт.
    • панельный
    1 500 000 Р
    Агент
    +7 (913) Показать номер
    Посмотреть контакты
    2-к кв. Красноярский край, Норильск Первомайская ул., 13 (52.2 м) - Фото 1
    2-к кв. Красноярский край, Норильск Первомайская ул., 13 (52.2 м) - Фото 2
    2-комнатная квартира, общая площадь 52м², жилая 32м², кухня 6м²

    Предлагаем к продаже уютную квартиру. Остается вся мебель, которую вы видите на фото. Заходи - живи.Собственник 1, вся сумма в договоре.Инфраструктура: остановка, магазины, школа, садик, центр все в шаговой доступности.Звоните, покажем в удобное для вас...
    • 52 м²
    • 2-ком
    • 8/9 эт.
    • панельный
    1 500 000 Р
    Агент
    +7 (913) Показать номер
    Посмотреть контакты
    Студия Красноярский край, Норильск Молодежный проезд, 5 (21.5 м) - Фото 1
    Студия Красноярский край, Норильск Молодежный проезд, 5 (21.5 м) - Фото 2
    студия, общая площадь 21м², кухня 3м²

    Квартира гостиничного типа, расположенная на среднем этаже девятиэтажного панельного дома. Косметический ремонт. Окно ПВХ. Потолок оклеен плиткой. На полу постелен линолеум и ковровое покрытие. Комната поделена на зоны: кухонная и спальная.При продаже...
    • 21 м²
    • студия-ком
    • 3/9 эт.
    • панельный
    1 700 000 Р
    Агент
    +7 (913) Показать номер
    Посмотреть контакты
    1-к кв. Красноярский край, Норильск Первомайская ул., 2 (35.7 м) - Фото 1
    1-к кв. Красноярский край, Норильск Первомайская ул., 2 (35.7 м) - Фото 2
    1-комнатная квартира, общая площадь 35м², кухня 7м²

    Однокомнатная квартира на среднем этаже девятиэтажного панельного дома 84 серии. Косметический ремонт: Входная и межкомнатные двери новые, современного образца, Окна-ПВХ, стены -обои, потолок облицован потолочной плиткой, на полу в комнате ковровое покрытие,...
    • 35 м²
    • 1-ком
    • 7/9 эт.
    • панельный
    1 650 000 Р
    Агент
    +7 (913) Показать номер
    Посмотреть контакты

    Не нашли подходящего объявления?

    Оставьте заявку, и наши риэлторы подберут квартиру в районе Норильска

    (0)