3 000 000 Р 37 810 $ или 32 280

Информация о квартире

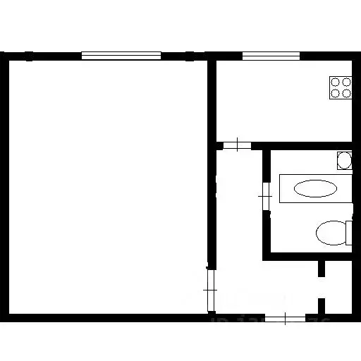
31 м2
Площадь
8 м2
Кухня
1
Комната
2
Этаж
9
Этажность

Дополнительная информация

Тип дома
панельный
Развернуть
Агент
+7 (983) 360-68-09
Начать чат с агентом

1-к кв. Красноярский край, Норильск Талнахская ул., 62 (31.5 м)

Однокомнатная квартира улучшенной планировки на втором этаже девятиэтажного дома 112 серии.В квартире требуется ремонт. Окна деревянные. Стены в квартире оклеены обоями, на полу постелен линолеум.Есть кладовая.Сан. узел совмещён, частично облицован кафельной плиткой. Сан. техника в рабочем состоянии. Установлены счётчики. В шаговой доступности: магазины, супермаркеты, школы, дошкольные учреждения, СДЦ Витязь, поликлиника, аптека, остановки общественного транспорта. Полное юридическое сопровождение сделки и гарантия безопасности. Подходит под арктическую ипотеку. Код пользователя: 184351Номер в базе: 8866936

Читать полностью

    Для того, чтобы купить однокомнатную квартиру по адресу: Норильск, ул. Талнахская, 62, позвоните по телефону +7 (983) 360-68-09. Торопитесь! Объявление №30092048758 о продаже однокомнатной квартиры опубликовано 02 декабря 2025.

    Позвонить Написать
    3 000 000 Р37 810 $ или 32 280
    Агент
    +7 (983) 360-68-09
    Начать чат с агентом
    Похожие предложения
    2-к кв. Красноярский край, Норильск Талнахская ул., 58 (46.0 м) - Фото 1
    2-к кв. Красноярский край, Норильск Талнахская ул., 58 (46.0 м) - Фото 2
    2-комнатная квартира, общая площадь 46м², кухня 6м²

    Двухкомнатная квартира на пятом этаже пятиэтажного дома хрущевской постройки, с раздельными комнатами. В комнатах поклеены обои, на полу постелен линолеум. Все окна заменены на современные пластиковые стеклопакеты, улучшающие тепло- и шумоизоляцию. Санузел...
    • 46 м²
    • 2-ком
    • 5/5 эт.
    • панельный
    3 000 000 Р
    Агент
    +7 (983) Показать номер
    Посмотреть контакты
    2-к кв. Красноярский край, Норильск Солнечный проезд, 5 (44.0 м) - Фото 1
    2-к кв. Красноярский край, Норильск Солнечный проезд, 5 (44.0 м) - Фото 2
    2-комнатная квартира, общая площадь 44м², жилая 33м², кухня 6м²

    Двухкомнатная квартира на третьем этаже пятиэтажного панельного дома хрущёвской планировки. Входная дверь - металлическая, окна - ПВХ, требуется ремонт. Санузел совмещенный, квартира тёплая, комнаты смежные. После продажи остаётся вся мебель и бытовая...
    • 44 м²
    • 2-ком
    • 3/5 эт.
    • кирпичный
    3 000 000 Р
    Агент
    +7 (913) Показать номер
    Посмотреть контакты
    1-к кв. Красноярский край, Норильск Ленинградская ул., 18 (30.5 м) - Фото 1
    1-к кв. Красноярский край, Норильск Ленинградская ул., 18 (30.5 м) - Фото 2
    1-комнатная квартира, общая площадь 30м², кухня 5м²

    Однокомнатная квартира, серии Хрущ, расположена на 1 этаже 5-этажного кирпичного дома.Квартира со свежим косметическим ремонтом. Окна ПВХ, натяжные потолки с точечным освещением. Полы застелены линолеумом.Санузел совмещён. Облицован панелями ПВХ, на полу...
    • 30 м²
    • 1-ком
    • 1/5 эт.
    • кирпичный
    3 000 000 Р
    Агент
    +7 (983) Показать номер
    Посмотреть контакты
    1-к кв. Красноярский край, Норильск Советская ул., 16 (32.0 м) - Фото 1
    1-к кв. Красноярский край, Норильск Советская ул., 16 (32.0 м) - Фото 2
    1-комнатная квартира, общая площадь 32м², жилая 20м², кухня 5м²

    Продается уютная квартира в самом сердце Норильска по адресу: улица Советская, 16. Это идеальное предложение для тех, кто ценит комфорт и удобство городской жизни. Квартира расположена в Центральном районе, что обеспечивает легкий доступ ко всей необходимой...
    • 32 м²
    • 1-ком
    • 5/5 эт.
    • кирпичный
    2 950 000 Р
    Агент
    +7 (989) Показать номер
    Посмотреть контакты
    2-комнатная квартира: Норильск, улица Мира, 4Б (44 м) - Фото 1
    2-комнатная квартира: Норильск, улица Мира, 4Б (44 м) - Фото 2
    2-комнатная квартира, общая площадь 44м², жилая 36м², кухня 6м²

    2 комн. квартира по ул. Мира. Общей площадью: 44.00 кв.м. Находится в центре, реальному покупателю скидкаВозможен обмен на вашу недвижимость.При звонке, пожалуйста, сообщите номер варианта - JV
    • 44 м²
    • 2-ком
    • 2/5 эт.
    3 000 000 Р
    Агент
    +7 (960) Показать номер
    Посмотреть контакты

    Не нашли подходящего объявления?

    Оставьте заявку, и наши риэлторы подберут квартиру в районе Норильска

    (0)